
文章插图
温州龙港市2021年人才住房配售房源明细表

文章插图

文章插图
龙港市2021年人才住房配售房源共两个地块,分别为:
1.龙港市新城XC-6-21地块(锦悦府)18#楼,建筑面积约3014平方米,套数27套,均为毛坯房 。该项目由苍南首瑞置业有限公司开发建设,计划于2022年5月31日交付 。地块坐落于龙港市新城城南大道南侧、启源路东侧、世纪大道西侧、霞飞路北侧 。
2.龙港市新城XC-6-23地块(胩烀乐?9#楼 , 建筑面积约6666平方米,套数64套,均为毛坯房 。该项目由温州景祥置业有限公司开发建设 , 计划于2023年6月30日开始交付使用 。地块坐落于龙港市新城开元路以北、霞飞路以南、启源路以东、世纪大道以西 。
具体房源信息见下表:

文章插图
锦悦府楼盘总平面效果图

文章插图
胩烀乐ヅ套芷矫嫘Ч?
附件2

文章插图
锦悦府政策性住房 户型图

文章插图
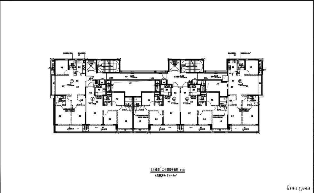
胩烀乐咝宰》?户型图

文章插图
锦悦府项目详情请咨询该项目楼盘售楼处,地址:国鸿锦悦府(世纪大道与文晖路交叉口) , 售楼处电话:0577-55589999 。
胩烀乐钅肯昵榍胱裳孟钅柯ヅ淌勐ゴΓ刂罚弘天美筑销售中心(世纪大道与霞飞路交叉口),售楼处电话:0577-68097777 。
【温州龙港市2021年人才住房配售房源明细表 2021温州人才住房配售进度】点击查看>>>关于龙港市2021年人才住房配售申请公告
- 温州龙港市人才住房补贴政策操作指南 温州龙港市人才住房补贴政策最新
- 龙港市2021年人才住房配售申请开始时间+结束时间 龙港市人才住房配售资格条件
- 温州龙港中低收入住房困难家庭公共租住房申请流程 温州龙港市低保标准
- 温州龙港中低收入住房困难家庭申请公租房政策 温州最低生活保障
- 温州龙港中低收入住房困难家庭公共租赁住房申请条件及对象 温州龙湾低保户
- 龙虾吃了对身体有伤害吗 吃龙虾的危害性
- 温州龙港2021年人才住房配售房源信息表+户型图+地址电话 温州市人才房2021
- 温州永嘉县生态搬迁的实施意见政策原文 温州永嘉县生态搬迁的实施意见及建议
- 2021年温州永嘉县配租人才住房房源信息表一览 温州永嘉县租房信息
- 2021年温州永嘉县配租人才住房申请对象及条件 温州永嘉人才补贴政策2021
